Was TF Duo K mitbringt
kantige Formen und gerade Linien
Holz im Innenbereich sorgt für Behaglichkeit und Wohnlichkeit
optimaler Schutz des Holzes im Außenbereich
große Farbauswahl an RAL-Farbtönen
Alternative für moderne Gebäude
kein Wartungsaufwand - geringe Folgekosten
hohe Wind- und Schlagregendichtigkeit
hohe Wärmedämmung
hoher Lärmschutz
integrierter Einbruchschutz und hoher Schließkomfort
Das macht TF Duo K aus
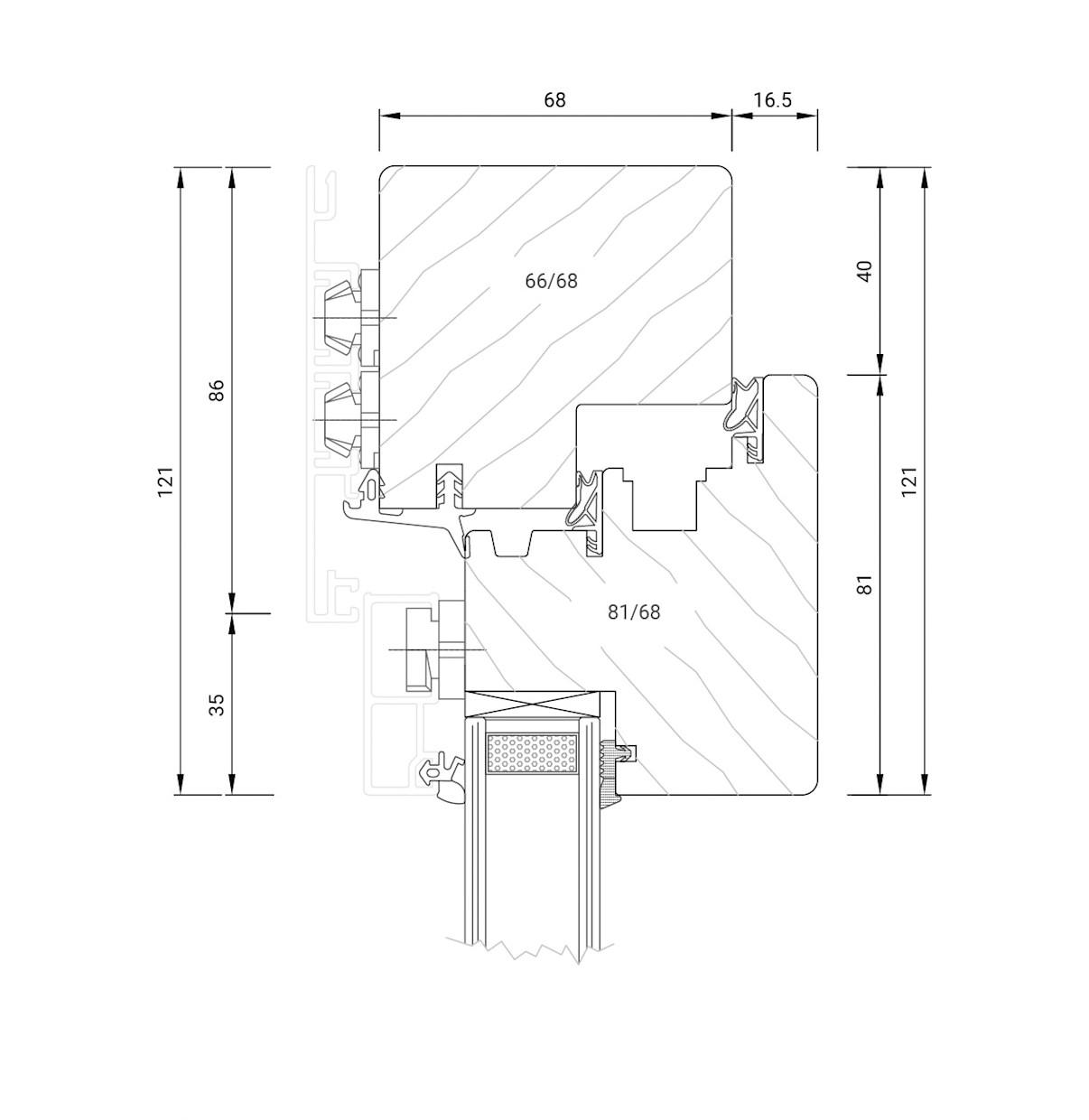
| technische Details von TF Duo K |
|---|
| Profilstärken 68 mm und 78 mm |
| halbflächenversetztes Holz-Aluminium-Fenster |
| Alurahmen mit verschweißten Eckverbindungen |
| kantige Aluprofile außen |
| kantige Flügelprofile innen |
| Flügelrahmen ohne Glasleiste |
| umlaufend dreifache Dichtung |
| Trockenverglasung |
| Glasdicken bis 40 mm möglich |
| Wärmeschutzglas mit "warmer Kante" (WDA) |




TF 68 Duo K Vertikal






